特点和应用
扭矩传感器电阻原理
扭矩传感器使用电阻原理双向测量扭矩和力,具有良好的线性和可忽略的滞后。这些传感器可以测量从小于0.1牛米到高达1000牛米的扭矩。
它们广泛应用于机械加工中心、压力机和测量站的零件处理机器人,提供了一种方便、准确、可重复和可靠的理想自动化解决方案!

额定范围 | 标称(额定)扭矩Mnom | 110牛米 |
输出灵敏度 | 标称(额定)灵敏度 | 0.075~3.925mV/V |
| 非线性 | 非线性 | 1.0%F.S。 |
| 磁滞 | 磁滞 | 1.0%F.S。 |
| 可重复性 | 可重复性 | 1.0%F.S。 |
| 蠕变(30分钟) | 蠕变(5分钟) | 1.0%F.S。 |
| 灵敏度漂移温度系数 | 温度对输出的影响 | 0.05%F.S。/10℃ |
| 零点漂移温度系数 | 温度对零点的影响 | 0.05%F.S。/10℃ |
绝缘电阻 | 隔热 | ≥5000MΩ/100VDC |
励磁电压 | 推荐励磁 | 5伏 |
温度补偿范围 | 补偿温度范围 | -10~40℃ |
工作温度范围 | 操作温度范围 | -10-60℃ |
安全过载 | 安全过载 | 120%F。S |
极限过载 | 极限过载 | 150%F。S |
防护等级 | 防护等级 | IP64 |
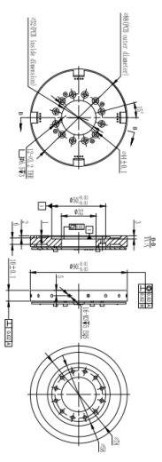
接线图 |
![]() |